Marconi, via L.Valerio, ad.lungotevere Papa, 82 mq. piano alto
Roma (Roma) -
Documenti allegati
Dimensione: 75,09 KB
Dimensione: 727,98 KB
Dimensione: 1,15 MB
Dimensione: 1,22 MB
Dimensione: 1,53 MB
Dimensione: 1,84 MB
Dimensione: 1,70 MB
Dimensione: 1,51 MB
Collegamenti
Ottima opportunità per giovani coppie e single ma anche per piccoli nuclei familiari o ad uso investimento per la posizione e servizi presenti.
Quartiere: Marconi, Via Luca Valerio, adiacenze Lungotevere Pietra PapaTipologia: Bilocale Mq. 82 commerciali, Piano 7° con portiere e ascensore
Esposizione: appartamento luminoso e soleggiato ottima esposizione
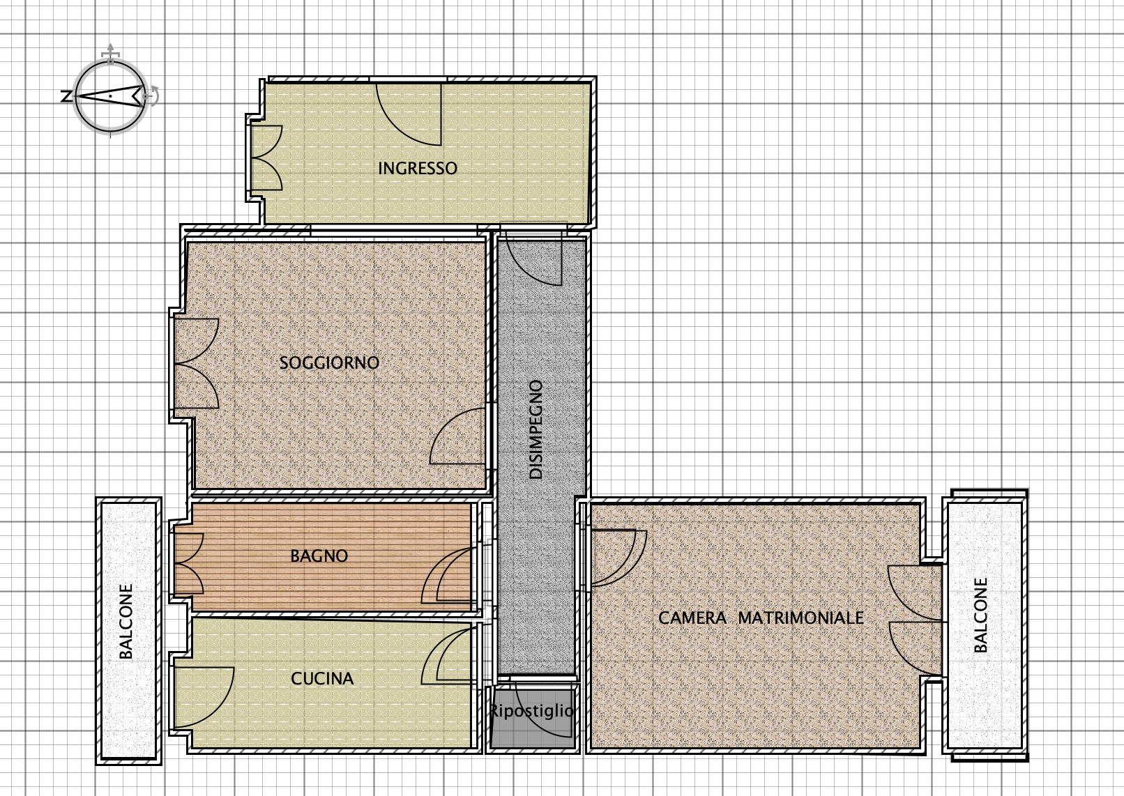
Descrizione: ingresso, due camere matrimoniali, ripostiglio, ampio corridoio, bagno, cucina, due balconi
Descrizione: ingresso, due camere matrimoniali, ripostiglio, ampio corridoio, bagno, cucina, due balconi
Per la sua metratura (82 mq commerciali)si presta ad una revisione con creazione di una terza camera.
Condizioni: bagno totalmente ristrutturato(impianti, rivestimenti e sanitari) cucina impianti e rivestimenti rifatti.
Riscaldamento centralizzato con contabilizzatori.
NB. tra le planimetrie allegate, si proporne una possibile progettazione con creazione della terza camera andando a recuperare funzionalità e valore commerciale.
Location: Sunny and bright apartment
Description: Entrance hall, two double bedrooms, closet, large hallway, bathroom, kitchen, two balconies
Due to its size (80 sq m), it is suitable for renovation with the creation of a third bedroom.
Conditions: Bathroom completely renovated (systems, tiling, and fixtures), kitchen systems and tiling redone.
Central heating with meters.
Property available from mid-March 2026, currently rented for €900.00 (lease already terminated).
The photos are partly pre-lease (but post-renovation) and partly of previously furnished units.
Located near Lungotevere di Pietra Papa and Lungotevere San Paolo, on Via Luca Valerio, near the start of Viale Marconi, Fenice Immobiliare offers for sale an approximately 80 sq m apartment on the 7th floor of an 8-storey building. The property enjoys a very central location, with bus stops for various lines nearby for all destinations. The Marconi and Garbatella metro stations are just over a 10-minute drive away, and shops and schools are within walking distance. The apartment has two views, one facing the street and one internally. It enjoys excellent sunlight exposure. The apartment comprises a large entrance hall with a window, currently used as a TV room, a spacious hallway with a built-in wardrobe and a storage room, two large double bedrooms, one with a balcony, a renovated bathroom with a comfortable built-in shower, and a renovated kitchen (with a table for three) with a balcony. There are paid parking garages nearby.
Selling price €285,000.00 - condominium fees approximately €110 per month + central heating.
Immobile libero da metà marzo 2026, ad oggi locato con canone 900,00 euro (contratto locazione già disdettato)
Le foto sono in parte antecedenti la locazione (ma post ristrutturazione)e in parte riferite ad un arredo precedente.
Ubicato a ridosso del Lungotevere di Pietra Papa e Lungotevere San Paolo, in Via Luca Valerio, nei pressi dell'inizio di Viale Marconi, la Fenice Immobiliare propone la vendita di un appartamento di 80 mq circa al 7° piano di un palazzo di 8, la location è centralissima, ci sono fermate autobus di diverse linee nei paraggi per tutte le destinazioni, la fermata metro Marconi o della Garbatella distano poco più di 10 minuti in auto, negozi e scuole sono raggiungibili a piedi in pochissimi minuti. La casa ha un doppio affaccio, uno su strada e uno interno. L'esposizione alla luce del sole è ottima. La composizione è di un ingresso ampio con finestra, ad oggi adibito per comodità a sala tv, seguono un ampio corridoio con armadio a muro, e ripostiglio, due ampie camere matrimoniali di cui una con balcone, bagno ristrutturato con comodo box doccia parte in muratura parte con ante in cristallo e la cucina anch'essa ristrutturata (tavolo per tre persone)con balcone. Nelle vicinanze ci sono garage a pagamento per il parcheggio.
Ubicato a ridosso del Lungotevere di Pietra Papa e Lungotevere San Paolo, in Via Luca Valerio, nei pressi dell'inizio di Viale Marconi, la Fenice Immobiliare propone la vendita di un appartamento di 80 mq circa al 7° piano di un palazzo di 8, la location è centralissima, ci sono fermate autobus di diverse linee nei paraggi per tutte le destinazioni, la fermata metro Marconi o della Garbatella distano poco più di 10 minuti in auto, negozi e scuole sono raggiungibili a piedi in pochissimi minuti. La casa ha un doppio affaccio, uno su strada e uno interno. L'esposizione alla luce del sole è ottima. La composizione è di un ingresso ampio con finestra, ad oggi adibito per comodità a sala tv, seguono un ampio corridoio con armadio a muro, e ripostiglio, due ampie camere matrimoniali di cui una con balcone, bagno ristrutturato con comodo box doccia parte in muratura parte con ante in cristallo e la cucina anch'essa ristrutturata (tavolo per tre persone)con balcone. Nelle vicinanze ci sono garage a pagamento per il parcheggio.
Prezzo di vendita € 285.000,00 - oneri condominiali circa 110 euro mensili + riscaldamento centralizzato.
ENGLISH DESCRIPTION
Neighborhood: Marconi, Via Luca Valerio, near Lungotevere Pietra Papa
Type: Two-room apartment, 80 sq m, 7th floor with doorman and elevatorLocation: Sunny and bright apartment
Description: Entrance hall, two double bedrooms, closet, large hallway, bathroom, kitchen, two balconies
Due to its size (80 sq m), it is suitable for renovation with the creation of a third bedroom.
Conditions: Bathroom completely renovated (systems, tiling, and fixtures), kitchen systems and tiling redone.
Central heating with meters.
Property available from mid-March 2026, currently rented for €900.00 (lease already terminated).
The photos are partly pre-lease (but post-renovation) and partly of previously furnished units.
Located near Lungotevere di Pietra Papa and Lungotevere San Paolo, on Via Luca Valerio, near the start of Viale Marconi, Fenice Immobiliare offers for sale an approximately 80 sq m apartment on the 7th floor of an 8-storey building. The property enjoys a very central location, with bus stops for various lines nearby for all destinations. The Marconi and Garbatella metro stations are just over a 10-minute drive away, and shops and schools are within walking distance. The apartment has two views, one facing the street and one internally. It enjoys excellent sunlight exposure. The apartment comprises a large entrance hall with a window, currently used as a TV room, a spacious hallway with a built-in wardrobe and a storage room, two large double bedrooms, one with a balcony, a renovated bathroom with a comfortable built-in shower, and a renovated kitchen (with a table for three) with a balcony. There are paid parking garages nearby.
Selling price €285,000.00 - condominium fees approximately €110 per month + central heating.
€ 285.000,00
condominio € 110 circa salvo aumenti o conguagli
| Riferimento | Luca Valerio |
|---|---|
| Tipologia | 2 vani |
| Stato immobile | DISPONIBILE |
| Tipo di contratto | vendita |
|---|---|
| Prezzo | € 285.000,00 |
| note prezzo | condominio € 110 circa salvo aumenti o conguagli |
| Via / Piazza | Via Luca Valerio |
|---|---|
| Area città | Roma Sud |
| Comune | Roma |
| Provincia | Roma |
| Regione | Lazio |
| Stato | Italy |
| Zona | Marconi |
| Classe energetica | G EPI 175 |
|---|---|
| m² | 82 |
| Vani | N. 2 / Ingresso, due camere matrimoniali, ampio corridoio, ripostiglio, cucina , bagno 2 balconi(possibile recupero 3^ camera) |
| Locali | N. 2 |
| Camere | N. 2 |
| Servizi | N. 1 / bagno ristrutturato con box doccia in muratura |
| Balconi | N. 2 / doppio affaccio interno esterno |
| Affacci interni | N. 1 |
| N. Piani | 8 |
|---|---|
| Piano di accesso | 7 |
| Porta blindata | si |
| Ascensore | si |
| Riscaldamento | centralizzato |
|---|---|
| Condizionamento | |
| Citofoni | si |
| Portineria | si |
| Arredamento |
| Spese condominiali | 110 euro compensive di acqua, riscaldamento e oneri condominiali |
|---|---|
| Occupato | immobile locato ma libero da metà marzo 2026 |
Riferimento
fenice Immobiliare di Carlo Di Gennaro
Via Laurentina 203 (solo su appuntamento)
0621118236 329 6416813
info@feniceimmobiliare.it
www.feniceimmobiliare.it
Via Laurentina 203 (solo su appuntamento)
0621118236 329 6416813
info@feniceimmobiliare.it
www.feniceimmobiliare.it
Per avere ulteriori informazioni su questo annuncio è sufficiente inserire i dati richiesti nel form sottostante e premere "Invia Richiesta"
I campi in grassetto sono obbligatori.

planimetria
planimetria
pln





